









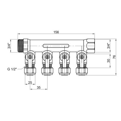
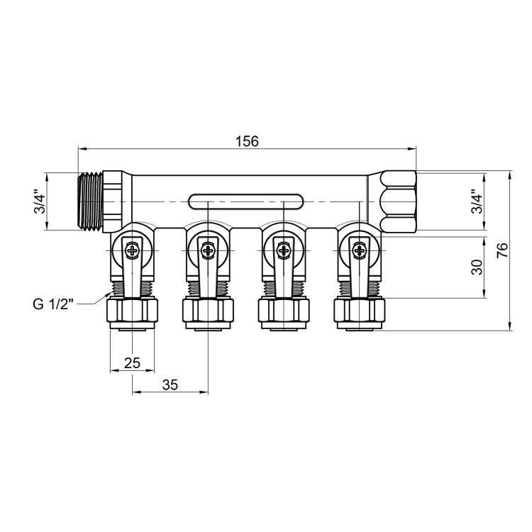
Колекторбалка 16*3/4 " 4-ой з перекриттям - це спеціалізований компонент для систем водопостачання та опалення, що дозволяє розподіляти потік теплоносія чи води на чотири контури, при цьому має функцію перекриття для кожного з напрямків. Такий колектор забезпечує гнучкий контроль і підвищує надійність системи завдяки можливості перекривати потоки в разі необхідності.
Особливості:
Розмір: 16*3/4" — діаметр 16 мм та різьбове з’єднання 3/4", що є стандартом для трубопроводів у побутових і комерційних системах опалення та водопостачання.
Кількість виходів: 4 — дозволяє підключити чотири різні контури, що робить цей колектор ідеальним для складних систем, де потрібно контролювати кілька напрямків теплоносія або води.
Перекриття: Кожен вихід має можливість перекриття потоку, що дозволяє регулювати або повністю відключати подачу рідини в окремі контури без впливу на інші.
Матеріал: Колектори зазвичай виготовляються з міцних матеріалів, таких як латунь або нержавіюча сталь, для забезпечення довговічності та стійкості до корозії.
Призначення: Використовується для розподілу потоку в більш складних системах опалення або водопостачання, де необхідно керувати декількома напрямками потоку.
Переваги:
Гнучкість: Перекриття на кожному контурі дозволяє легко контролювати потоки в системі, а також повністю перекривати потік в разі потреби.
Надійність: Виготовлений з високоякісних матеріалів, цей колектор забезпечує довготривалу експлуатацію і стійкість до впливу зовнішніх факторів.
Універсальність: Підходить для використання в багатоконтурних системах опалення, водопостачання, а також для інших інженерних мереж.
Легкість в монтажі: Завдяки стандартному різьбовому з’єднанню 3/4", колектор можна легко інтегрувати в існуючі системи без додаткових складнощів.
Колектор/Балка 16*3/4" 4-ий з перекриттям — це ефективний і надійний елемент для складних багатоконтурних систем, який дозволяє точно регулювати потоки теплоносія або води, знижуючи енергоспоживання і підвищуючи ефективність системи.